來源:綠圈

項目鳥瞰


項目位于公共草坪邊

建筑外觀


與自然環境相協調


建筑立面構件

被動房系統安裝在建筑表面上



立面細部


入口,室內外界限模糊

公共空間

機械系統藏在吊頂中

洗衣房

走廊


糖果色的樓梯間



樓梯間

夜景

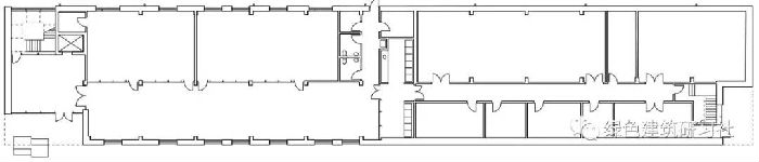
一層平面圖

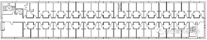
標準層平面圖

立面圖

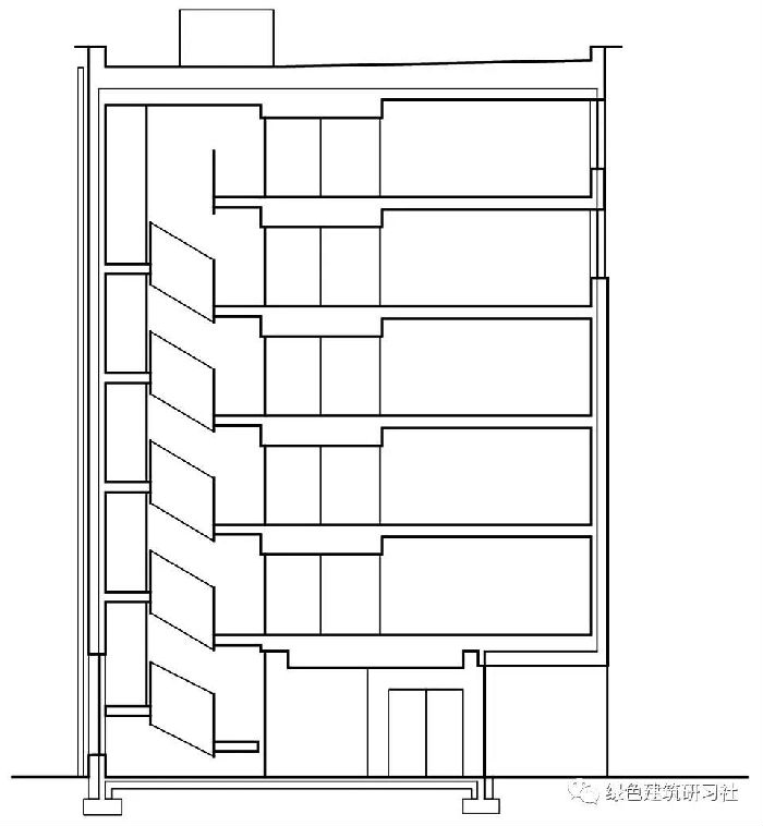
剖面圖

細部
來源:綠圈

項目鳥瞰


項目位于公共草坪邊

建筑外觀


與自然環境相協調


建筑立面構件

被動房系統安裝在建筑表面上



立面細部


入口,室內外界限模糊

公共空間

機械系統藏在吊頂中

洗衣房

走廊


糖果色的樓梯間



樓梯間

夜景

一層平面圖

標準層平面圖

立面圖

剖面圖

細部